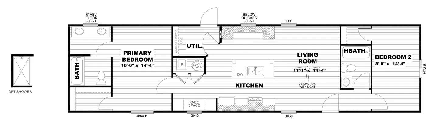
SELECT 16602S
Floor Plan
Select 16602S
BEFORE OPTIONS
2 beds
2 baths
900 sq. ft.
Floor Plan

We accept trades!
Find a new home you love? Contact us for more information about our trade-in requirements and to schedule your free trade evaluation.
Learn More













